Zum Inhaltsbereich springen

Altersheim La Résidence

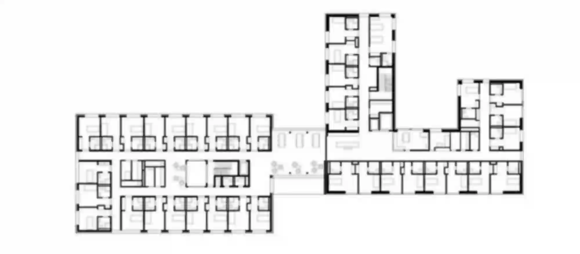
Die Erweiterung des Altenheims La Résidence beruht auf der wachsenden Nachfrage für betreute Wohnheimplätze in einer zunehmend älter werdenden Gesellschaft. Hierbei stellen Erweiterungen eine besondere Herausforderung dar, da sie nicht nur parallel zum laufenden Betrieb umgesetzt werden müssen, sondern auch eine enge Verknüpfung, klare Orientierung und kurze Wege für die Zukunft einfordern – so auch im Projekt zur Sanierung und Erweiterung des Wohnheims in Aigle. Durch die nach Süden verschobene Positionierung des Neubaus erhalten auch zukünftig alle Bewohnerzimmer eine beeindruckende Fernsicht in die umliegenden Berge. Ein gläserner Verbindungsbau wird zur neuen Mitte des Heims. Natürliche Materialien und warme Farbtöne bilden die neue Lebensumgebung. Nach der Übergabe des Neubaus Anfang 2020 wurde in einer zweiten Etappe mit den Sanierungsmassnahmen begonnen.

Ort

Aigle

Jahr

2014 – 21

Stand

1. Preis, in Bearbeitung

Projekt

Erweiterung Altenpflegeheim

Auslober

Fondation des Maisons de Retraite
du District d’Aigle

Verfasser

Translocal Architecture GmbH

Fotos

Rainer Taepper

Nächstes Projekt: Dreifeldsporthalle, Montreux | CH