Aller au contenu

École Fondation Monneresse

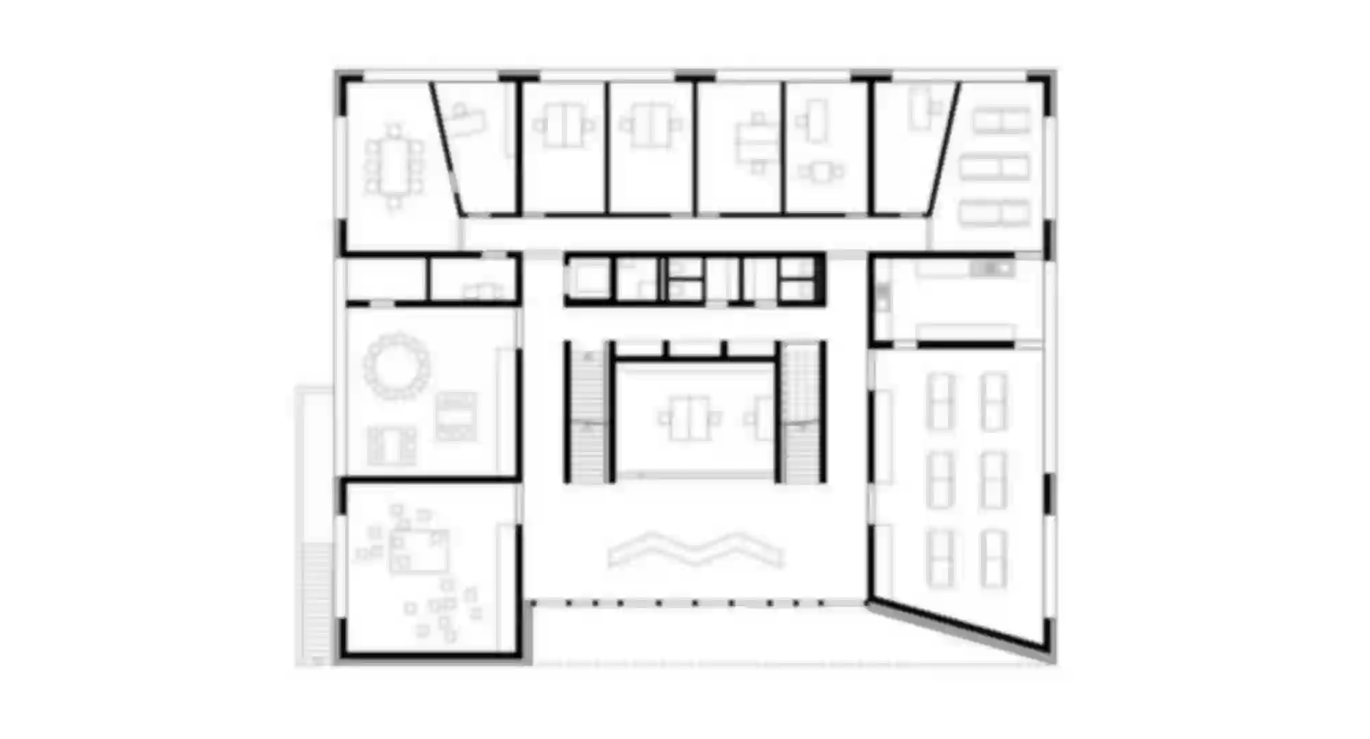
L’école spécialisée La Monneresse accueille des enfants qui se retrouvent dans l’empêchement d’apprendre et dont les difficultés ou problèmes perturbent leurs apprentissages scolaires ou sociaux. Le programme est réparti sur deux niveaux : au rez-de-chaussée l’entrée, l'administration et la salle à manger, à l'étage les huit classes formant deux groupes d’apprentissage. Chacun des deux groupes se compose de quatre classes distribuées par un espace polyvalent et son propre escalier. Au cœur du bâtiment et visible depuis toutes parts, la bibliothèque rassemble tout en séparant. Inondée de lumière, elle invite les élèves à feuilleter les livres ou à les lire. Quant aux salles de classe, ces unités permettent une variété de configurations d'enseignement tel que l'enseignement frontal classique ou l'enseignement décloisonné. Le nouveau bâtiment scolaire est clairement reconnaissable à la forme de sa toiture à pans inclinés. De part une matérialisation claire et un éclairage orienté, le toit lui donne ainsi une note toute particulière.

Lieu

Aigle

Année

2014 – 19

État

1 prix, réalisé

Projet

Bâtiment nouveau

Maître d'ouvrage

Fondation la Monneresse

Auteur

Translocal Architecture GmbH

Photos

Rainer Taepper, Marko Göhre

Prochain projet: Salle de sport double, Niederviehbach | D