Nouvelles
Liste
Galerie
Contact
Associés
Équipe
Postes vacants
Publications
Prix et distinctions
Jury
Impressum et protection des données
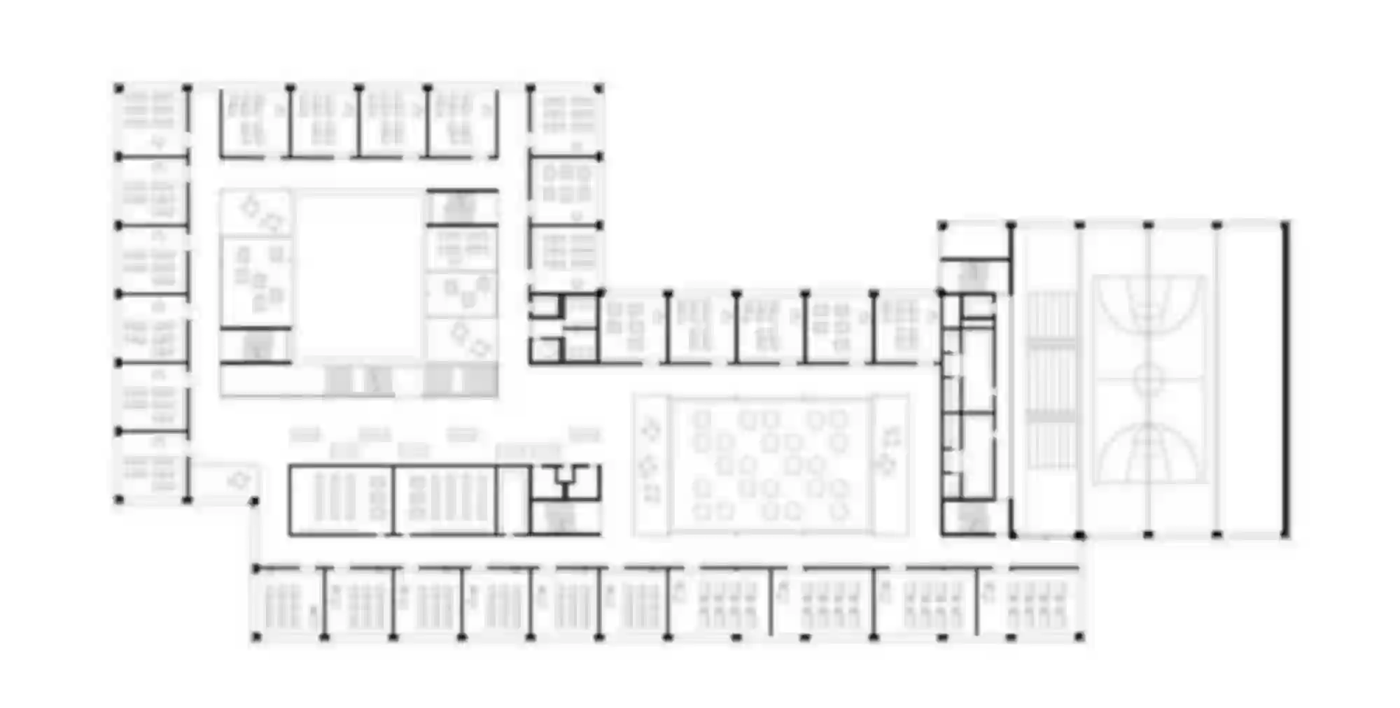
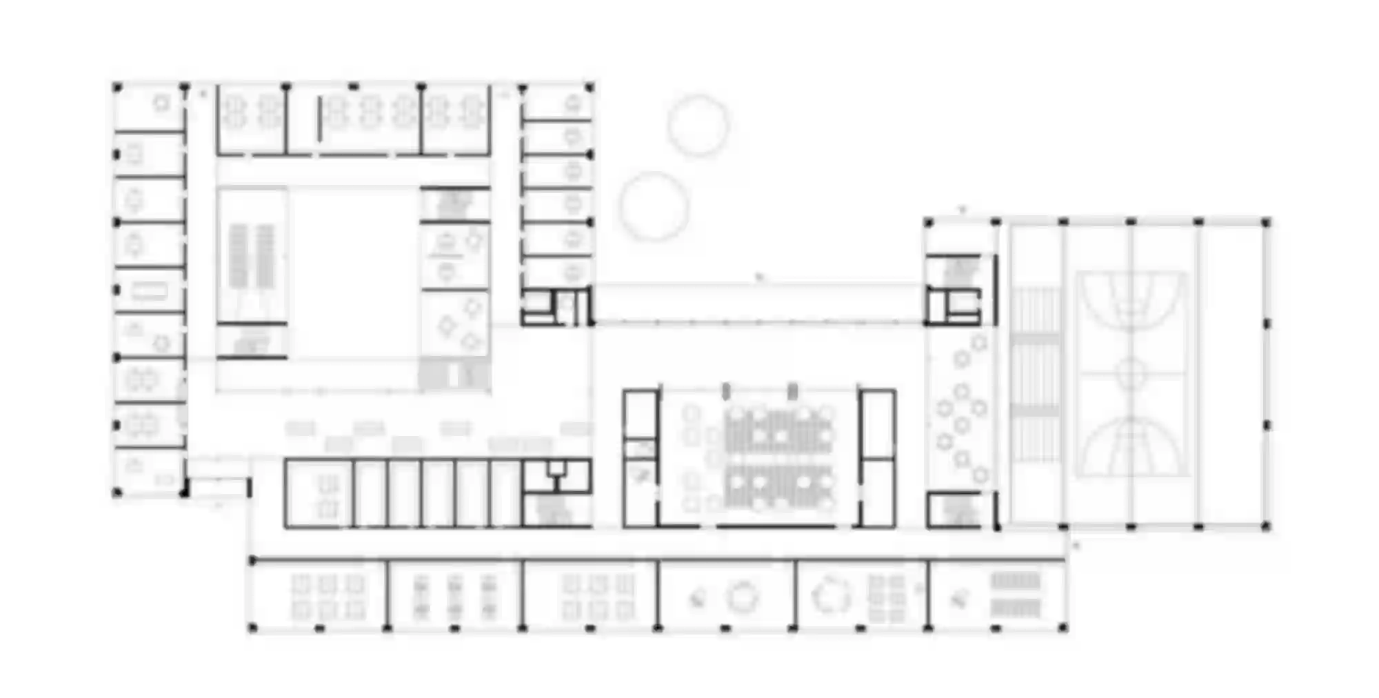
Vernier
2019
Concours, 4e prix
École secondaire avec 2 salles de sport
Etat de Genève
Translocal Architecture GmbH Pola Landschaftsarchitekten