
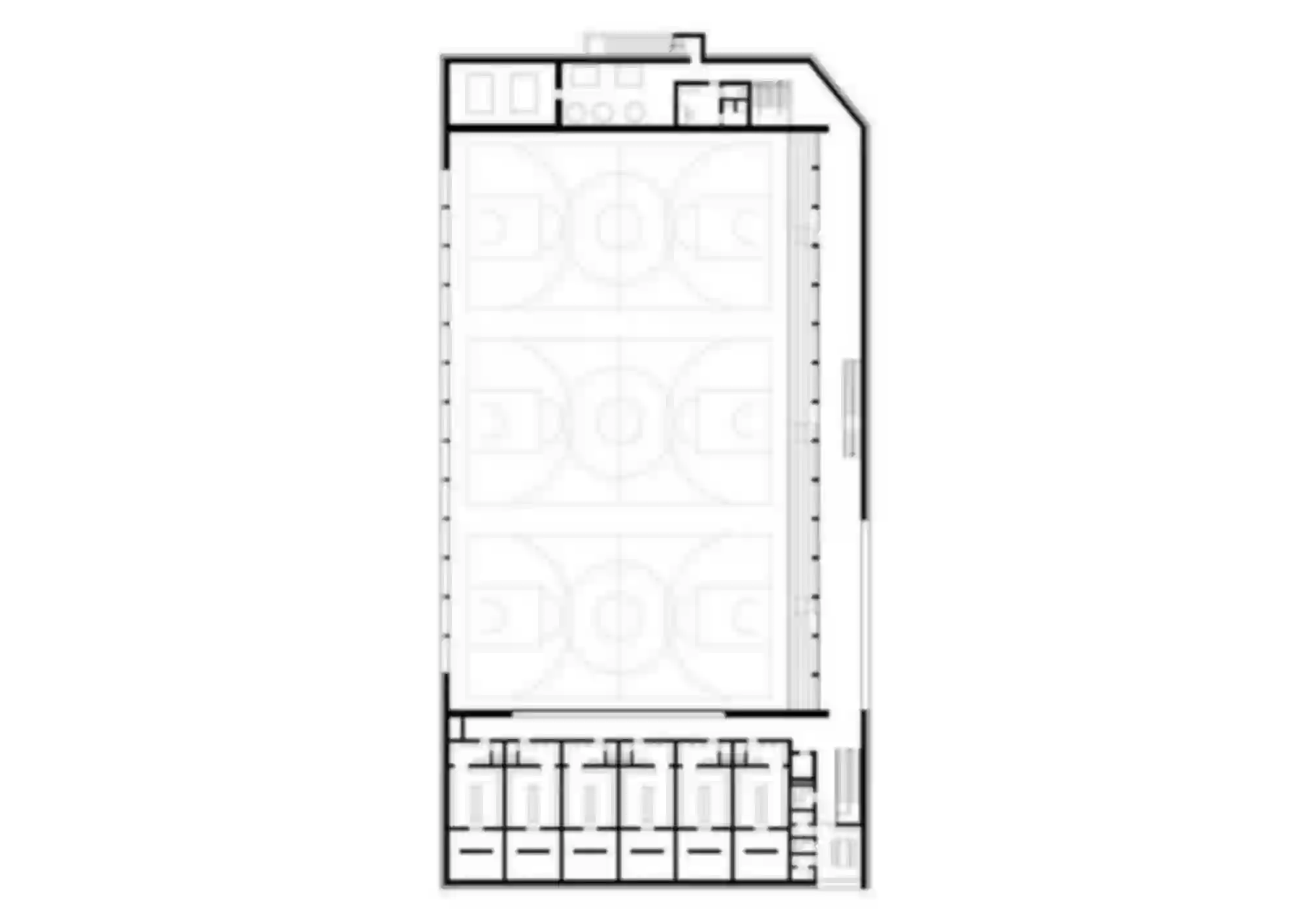
La nouvelle salle de sport triple, située derrière la gare sur le site du complexe scolaire Montreux Est, vient remplacer une salle de gymnastique simple devenue vétuste. La topographie de la parcelle divise le site sur deux niveaux. Logée dans sa partie supérieure, la construction occupe presque la totalité de la surface qui lui est dédiée. Malgré son important volume imposé par le programme, le nouveau bâtiment s’insère dans un environnement morcelé grâce à une stratification ciblée et un jeu d’avancée et de retrait sur la façade de l’entrée. Développé sur deux niveaux et exempt de sous-sol dû à la proximité des deux tunnels de la compagnie du MOB sur lequel il est construit, le bâtiment se veut compact et simplement organisé. Le système constructif est un dialogue entre le béton – le socle - et la construction bois -la charpente de la salle de gymnastique et de la toiture, et une grande partie des façades. Le bardage extérieur, des lamelles entrecroisées et pré-grisaillées naturellement, propose une lecture contemporaine de la construction bois dans un contexte passablement urbain. Le socle du bâtiment, lui, est revêtu de panneaux préfabriqués en béton.
Montreux
2019 – 22
Réalisation
Salle de sport triple VD6
Commune de Montreux
Translocal Architecture GmbH
avec Jordan architectes SA